Architectural modeling of multistory building in the ArchiCAD system
- Authors: Vavin A.A., Utkina V.N.
- Issue: Vol 7, No 5 (2019)
- Section: Articles
- Submitted: 04.02.2025
- Accepted: 04.02.2025
- URL: https://ogarev-online.ru/2311-2468/article/view/278913
- ID: 278913
Cite item
Full Text
Abstract
The formation of an architectural 3D model of a multistory residential building in the ArchiCAD system is completed. The technological sequence of the model is defined. The modeling results are presented.
Full Text
Информационное моделирование зданий – Building Information Modeling (BIM) является основным инновационным трендом в мировой строительной отрасли. Это современный подход к проектированию, возведению, оснащению и управлению жизненным циклом объекта. Согласно определению национального проектного комитета США информационная модель – цифровое представление физических и функциональных характеристик объекта, общий ресурс знаний для получения информации об объекте, который служит надежной основой для принятия решений в течение его жизненного цикла от самой ранней концепции до сноса [1].
BIM-технология проектирования имеет ряд преимуществ перед простой проработкой чертежей с последующим документированием: она более наглядная, разносторонняя, вовлекающая в единый производственный процесс одновременно всех участников (архитекторов, конструкторов, технологов, дизайнеров, представителей различных отраслей строительства), что позволяет ускорить получение выходной документации, спецификаций и смет, а также предотвращает возникновение ошибок и значительно повышает качество проектов [2; 3].
Архитектурное моделирование служит основой концепции любого объекта строительства и несет в себе пространственное, физическое и эстетическое представление здания. Цель нашей работы – формирование архитектурной пространственной модели многоэтажного жилого дома в системе ArchiCAD.
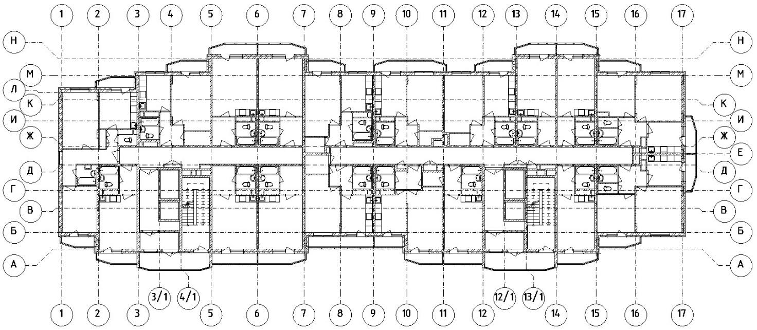
Проектируемым объектом является многоквартирный семнадцатиэтажный жилой дом двухсекционного типа со встроенными нежилыми помещениями на первом этаже для общественного пользования. Жилые этажи, начиная с третьего, имеют типовую планировку, что позволит ускорить разработку чертежей для проекта (рис. 1). Входные группы каждой секции включают тамбур, вестибюль, колясочную, помещение для консьержа. Для сообщения между входными группами и жилыми этажами дома запроектированы группы лифтов, составляющих совместно с лестничными клетками лестнично-лифтовые узлы. Высота жилых этажей составляет 2,8 м, а общественного – 3,5 м. Принятые в проекте планировки и площади квартир определены на основании исследования потребительского спроса на доступное жильё и представлены тремя основными типами квартир эконом-класса: однокомнатные студии, однокомнатные и двухкомнатные. Количество квартир каждого вида на типовом этаже – 9, 6 и 3 соответственно.
Высота здания до верха парапета основного уровня кровли составляет +52,00 м. По выступающим объёмам лестничных клеток и машинных отделений лифтов высота здания определена относительной отметкой +55,110 м.
Длина первой секции здания в осях 1 – 5 равна 13,500 м, между секциями запланирован проем в осях 5 – 7 шириной 8,400 м и высотой с подвального до второго этажа, вторая секция в осях 7 – 17 имеет длину 34,200 м. Ширина здания в осях А – Н составляет 17,200 м.
Конструктивная схема жилого дома представляет собой монолитную рамно-связевую каркасную систему с диафрагмами жесткости на железобетонной монолитной плите.
Архитектурное моделирование здания производилось в современной системе автоматизированного проектирования ArchiCAD 21. Данное программное обеспечение одним из первых зарекомендовало себя внедрением BIM-технологии, использующей встроенную систему обширных библиотечных элементов с возможностью параметрического моделирования, а также метод виртуального дома, который преобразовывает все элементы чертежа в объемную детализированную трехмерную модель будущего объекта строительства. Это позволяет параллельно с разработкой планов этажей моделировать фасады и разрезы, ускоряя сам производственный процесс [4].
По сравнению с другими программными комплексами ArchiCAD имеет ряд преимуществ. В САПР AutoCAD от Autodesk хорошо развиты возможности 2D проектирования, а формирование 3D-модели объекта потребует на порядок больше времени и трудозатрат [5]. Система SketchUp от компании Trimble Navigation позволяет очень быстро создавать архитектурную концептуальную модель, но в большинстве случаев – для простых объектов со слабо проработанными конструктивными особенностями [6]. САПФИР-3D компании «Лира сервис», наоборот, позволяет проработать конструктив объекта, но имеет более слабые возможности в создании архитектуры по сравнению с ArchiCAD [7].
Выбранная для моделирования современная версия ArchiCAD 21 имеет очень удобные и мощные инструменты графического построения и редактирования параметрических 3D-моделей, позволяет быстро проработать как архитектурную, так и конструкторскую часть объекта строительства, и получить обширную выходную документацию в кратчайшие сроки.
Архитектурное моделирование многоэтажного жилого здания (от создания типового этажа до реалистичной модели объекта) выполняется согласно определенной технологической последовательности [4; 8; 9]. Задаются пространственные параметры и размеры объекта. Устанавливаются количество и высоты этажей, создаются координационные оси здания, к которым будет проводиться привязка конструктивных элементов. Осуществляется проработка конструктивных особенностей ограждающих и несущих стен, перегородок, перекрытий и полов. Для этого создаются новые многослойные конструкции, которые отражают особенности каждого элемента (материалы, толщина и другие параметры).
Выполняется привязка вертикальных конструктивных элементов к осям с помощью соответствующих инструментов, вводятся их пространственные размеры и другие характеристики. Устанавливаются лестничные марши и лифтовые шахты. Осуществляется привязка железобетонной монолитной плиты перекрытия с отверстиями. Заполняются оконные и дверные проемы типовыми библиотечными элементами и индивидуальными, полученными с помощью параметрической настройки. Размещаются инвентарная мебель и сантехническое оборудование на плане (рис. 1).
Рис. 1. План типового этажа.
Выполняется нанесение размеров на плане и установка дополнительных информационных сносок. Производится копирование типовых этажей с исходным расположением всех элементов в соответствии с этажностью здания. При внесении изменений на планах автоматически корректируются все остальные части проекта; можно проверять изменения, видеть погрешности и вовремя исправлять их, сравнивать варианты и выбрать лучшее решение.
Размещается секущая плоскость разреза на плане и осуществляется переход в вид разреза. Поперечный разрез здания в осях Н – А показан на рис. 2. Устанавливаются высотные отметки, если необходимо, добавляется информация о конструкции перекрытий и стен на разрезе.
Размещается плоскость сечения фасада на плане. Создаются новые покрытия для придания фасадам соответствующей фактуры и цветовой схемы. Осуществляется переход в вид фасада. Устанавливаются новые покрытия для ограждающих конструкций в соответствие с цветовой схемой. Главный фасад здания представлен на рис. 3. Проставляются высотные отметки и добавляются ведомости отделки фасадов.
Рис. 3. Вид на главный фасад здания.
Выполняется переход в 3D-вид и разрабатывается архитектурная среда. С помощью инструмента «3D-сетка» создаются тротуары, проезжая часть, а также газоны и озеленение. Устанавливаются бордюры, добавляются элементы озеленения и другие декоративные объекты.
Осуществляется установка камеры и ее настройка (выбор угла просмотра, расположения солнца). Выполняется презентационная визуализация и создание пространственного изображения объекта (рис. 4).
Рис. 4. Презентационная визуализация объекта.
В результате проведенной работы сформирована архитектурная модель многоэтажного жилого здания, включающая объемно-планировочные и конструктивные решения, которые могут быть представлены в виде плоских чертежей и наглядных 3D-изображений. Из этой модели автоматически получаются следующие выходные данные: планы этажей, разрезы, готовые фасады, ведомости подсчета объемов работ и количества инвентарного оборудования, а также презентационные визуализации объекта.
Архитектурная модель является основой для продолжения разработки информационной модели здания, ее можно изменять, дополнять, экспортировать в универсальные и специализированные программные комплексы для подготовки аналитической пространственной модели, прочностного расчета и анализа несущих конструкций, выбора рациональных конструктивных и инженерных решений, дальнейшей детализации рабочей документации, необходимой при строительстве и эксплуатации многоэтажного жилого дома.
About the authors
A. A. Vavin
Author for correspondence.
Email: ogarevonline@yandex.ru
Russian Federation
V. N. Utkina
Email: ogarevonline@yandex.ru
Russian Federation
References
- Frequently Asked Questions About the National BIM Standard-United States [Электронный ресурс]. – Режим доступа: https://Nationalbimstandard.org (дата обращения 08.05.2019).
- Талапов В. В. Основы BIM: введение в информационное моделирование зданий. –М.: ДМК Пресс, 2011. – 392 с.
- Уткина В.Н., Смолин А.Н. Российский опыт применения BIM-технологий в строительном проектировании // Долговечность строительных материалов, изделий и конструкций: материалы Всерос. науч.-техн. конф. – Саранск: Изд-во Мордов. ун-та, 2018. – С. 201-210.
- Малова Н. А. ArchiCAD в примерах. Русская версия. – СПб.: БХВ-Петербург, 2017.– 576 с.
- Новые функции AutoCAD 2019 [Электронный ресурс]. – Режим доступа: https://www.autodesk.ru/products/autocad/features (дата обращения 08.05.2019).
- What's New with SketchUp Pro [in] 2019? [Электронный ресурс]. – Режим доступа: https://blog.sketchup.com/article/a-whole-new-way-to-sketchup (дата обращения 08.05.2019).
- Новые возможности САПФИР-3D 2018 [Электронный ресурс]. – Режим доступа: https://www.liraland.ru/sapfir/versions (дата обращения 08.05.2019).
- Джанибекова З. Н. Информационное многомерное моделирование объектов строительства [Электронный ресурс] // Молодой ученый. – 2016. – №15. – С. 178-180. – Режим доступа: https://moluch.ru/archive/119/33045/ (дата обращения: 14.03.2019).
- Бэнкс Дж. Сколько я должен моделировать в ArchiCAD [Электронный ресурс] // САПР и графика. – 2015. – № 2. – Режим доступа: https://sapr.ru/article/24779 (дата обращения 08.05.2019).
Supplementary files











