Integration of Autodesk Revit 2022 with SP Lira 10.12
- Authors: Berezentseva A.A., Nizina T.A., Mitroshin I.A.
- Issue: Vol 11, No 7 (2023)
- Pages: 65-74
- Section: Articles
- Submitted: 18.11.2024
- Accepted: 18.11.2024
- URL: https://ogarev-online.ru/2311-2468/article/view/270643
- ID: 270643
Cite item
Full Text
Abstract
The formation of an information model of a multistory residential building with a frame structural system in Autodesk Revit 2022 was carried out. The technological sequence for creating the model was determined. An analytical model is obtained. Exported to SP LIRA 10.12. The results of the model exporting are presented.
Full Text
Autodesk Revit – полнофункциональная САПР от компании Autodesk, предоставляющая возможности архитектурного проектирования, проектирования инженерных систем и строительных конструкций, а также моделирования процессов строительства [1]. Данная информационная система обеспечивает высокий уровень совместной работы специалистов различных специальностей, позволяя значительно сократить число возможных ошибок [2]. При этом важным вопросом являет корректный экспорт аналитической модели в расчетные программные комплексы без потери части информации.
Проведем анализ различных подходов к экспорту аналитической модели из Autodesk Revit в ПК ЛИРА 10.12, в частности, с помощью формата IFC 2х3 и встроенного плагина в Revit [3; 4]. Для этого первоначально спроектируем объект исследования и проанализируем реализацию аналитической модели в Revit. Выбор конструктивного решения пространственного каркаса многоэтажного здания предполагает такие исходные параметры как: вертикальные несущие элементы: колонны, пилоны; перекрытие: монолитное безбалочное. Размеры здания в плане 27,85 × 18,6 м; высота типового этажа – 3,0 м; количество этажей – 12; отметка пола первого этажа – (-0,600).
На первом этапе запроектируем диафрагмы жесткости каркаса, обеспечивающие пространственную жесткость. Для этого воспользуемся инструментом Стена и Колонна из группы модулей Конструирование. Так как данные элементы являются несущими, необходимо присвоить им необходимые параметры для того, чтобы программа воспринимала эти элементы как объекты аналитической модели. Первоначально выберем инструмент Стена: несущая и создадим типоразмер для пилонов. Для этого создадим свойство типа Диафрагма – 200 мм и зададим необходимую структуру материалов, назначив его несущим слоем.
Важно учитывать, что Revit при создании стен имеет свою классификацию функций слоев [5]:
- Структура (1) – несущий слой конструкции;
- Основа (2) – вспомогательный слой (основание для крепления);
- Термическая/воздушная прослойка (3) – слой утеплителя;
- Отделка 1 (4) – наружная сторона отделки;
- Отделка 2 (5) – внутренняя сторона отделки;
- Изолирующее покрытие – мембрана.
Проектирование стен, как правило, производится на плане. Высота стен определяется уровнем нижней и верхней плоскости, который задается для каждого уровня. Внутренние и наружные стены создаются аналогичным образом.
Далее запроектируем несущие колонны с помощью кнопки Несущая колонна. Так как программой не предусмотрены необходимые для данного проекта колонны, подгрузим их из библиотеки Revit, создав необходимые типоразмеры семейства, в частности: 300×600, 600×300, 600×400, 400×600, 400×800 и 400×400 мм.
Следующим этапом проведем заполнения оконных и дверных проемов. Заполнение проемов производится аналогично созданию колонн и стен – с помощью создания семейств. Витражи задаются как самостоятельные плоскости с помощью свойства Витраж кнопки Стена.
Лестничные марши, а также лестницы, пандусы и ограждения входной группы задаются с помощью специальных кнопок на вкладке Архитектура путем создания семейств с необходимыми типоразмерами.
Карниз создадим на 3D-виде с помощью кнопки Стена: выступающий профиль, создав при этом семейства с необходимыми профилями.
Перекрытие на уровне пола первого и второго этажа зададим при помощи инструмента Перекрытие: несущее. Проемы шахты лифта и лестничной площадки создадим при помощи кнопки Шахта; таким образом появится возможность отрегулировать верхний и нижний диапазоны.
Планировка первого и второго этажа проектируемого здания отличаются, однако наружные стены и каркас остаются неизменными, поэтому для упрощения процесса проектирования скопируем первый этаж с помощью кнопки Копировать в буфер и вставим его на уровень второго этажа с помощью кнопки Вставить с выравниванием по выбранным уровням. Далее отредактируем планировку с помощью известных инструментов.
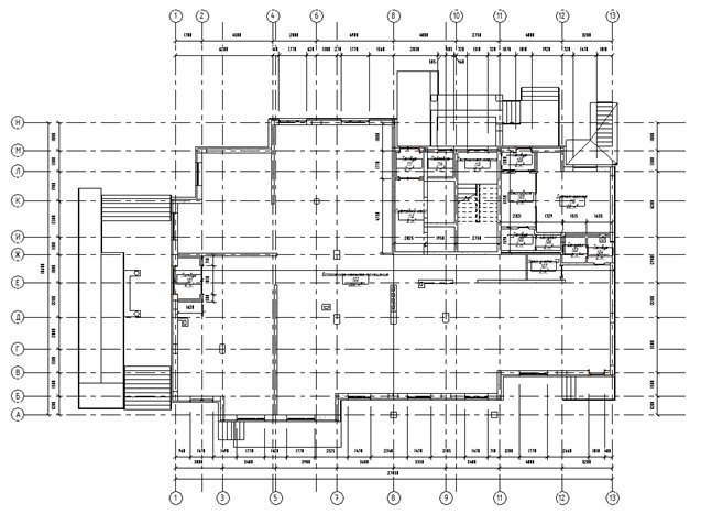
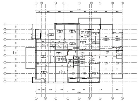
Оставшиеся этажи многоэтажного жилого дома возводятся аналогичным образом с помощью доступных инструментов Revit. План первого этажа представлен на рисунке 1, план типового этажа – на рисунке 2, 3D-модель здания – на рисунке 3.
Рис. 1. План 1-го этажа.
Рис. 2. План типового этажа.
Рис. 3. 3D-модель здания.
Перед получением аналитической модели отобразим модель несущих конструкций смоделированного здания с помощью смены раздела вкладки Дисциплина на панели свойств с архитектурного на конструкторский (рисунок 4).
Рис. 4. 3D-модель несущих конструкций.
В Autodesk Revit обмен информации с программами, реализующими метод конечных элементов (МКЭ) [5; 6], для расчета и анализа несущих конструкций возможен посредством аналитической модели, которая представляет собой упрощенное трехмерное представление физической модели несущих конструкций. Так, в аналитическом представлении перекрытия и фундаментные плиты приводятся к пластинам, а балки и колонны – к стержням. Также аналитическая модель содержит в себе информацию о поперечных сечениях и толщинах элементов модели, а также сведения об их геометрии, материалах, условиях закрепления и нагрузках.
В Revit аналитическая модель создается автоматически в ходе моделирования элементов несущих категорий: несущие стены, перекрытия, несущий каркас, несущие колонны, фундамент, фермы. Достаточно только активировать Категории аналитической модели и настроить их графику (рисунок 5) с помощью кнопки Видимость/Графика панели Вид, вкладка Графика. Полученная аналитическая модель представлена на рисунке 6.
Рис. 5. Настройка параметров аналитической модели.
Рис. 6. Аналитическая модель здания.
После получения аналитической модели экспортируем ее в расчетный комплекс ПК ЛИРА 10.12, представляющий собой многофункциональный программный комплекс для проектирования и расчёта строительных и машиностроительных конструкций различного назначения.
Интеграцию Revit с ЛИРА 10 возможно осуществить двумя способами:
- с помощью встроенного плагина экспорта на панели Надстройки в окне Инструменты ЛИРА 10;
- с помощью передачи в формат IFC 2x3 Coordination View0.
Сначала рассмотрим второй способ. Для этого активируем аналитическую модель, а после проверки корректности отображения элементов, передадим ее в IFC 2х3 [6]. В Revit есть возможность применить определенные настройки: в первую очередь это выбор версии транслятора. Он поддерживает несколько вариантов IFC2x3, а также IFC4. Далее откроем ЛИРА 10.12 и импортируем модель (рисунок 7).
Рис. 7. Интеграция Блока А из Revit в ЛИРА 10 с помощью IFC2х3.
Проанализируем полученную модель и отметим, что импорт через формат IFC произошел не совсем корректно (рисунок 8): граница стен и колонн превышается над уровнем плиты, узлы не стыкуются друг с другом, в некоторых местах заметен обрыв колонн.
Рис. 8. Погрешности экспорта модели из Revit в ЛИРА 10 с помощью IFC2х3.
Воспользуемся возможностью импорта модели здания в ЛИРА 10 из Revit с помощью встроенного плагина. При нажатии на кнопку Экспорт модели Revit программа выведет на экран окно Мастер экспорта, которое позволяет произвести ряд настроек модели, включая назначения триангуляции (рисунок 9).
Рис. 9. Аналитическая модель в Revit.
Выполнив необходимые настройки, программа начнет экспорт в расчетный комплекс и по завершению откроет модель в ЛИРА 10 (рисунок 10). Отметим, что в данном случае модель импортировалась корректно (рисунок 11).
Рис. 10. Интеграция Блока А из Revit в ЛИРА 10 с помощью встроенного плагина.
Рис. 11. Интеграция Блока А из Revit в ЛИРА 10 с помощью встроенного плагина.
Вывод. По результатам проведенного анализа выявлено, модель Revit не только передается в ПК ЛИРА 10, а синхронизуется с ней, становясь частью сквозного проектирования. При этом необходимо отметить, что корректный экспорт для данного объекта был реализован в случае связи Revit с ЛИРА 10 через специальный плагин; в случае передачи модели в расчетный комплекс по средству формата IFC произошла потеря части данных. При интеграции Revit 2022 c ПК ЛИРА 10.12 вся работа происходит в одной модели без прерывания процесса проектирования. В случае внесения изменений в проект (добавление нагрузок, смещение проемов, изменение несущих конструкций) обновление расчётной модели производится в один клик, что говорит о правильной интеграции двух разнонаправленных пакетных решений.
About the authors
A. A. Berezentseva
Author for correspondence.
Email: fac-build@adm.mrsu.ru
Russian Federation
T. A. Nizina
Email: fac-build@adm.mrsu.ru
Russian Federation
I. A. Mitroshin
Email: fac-build@adm.mrsu.ru
Russian Federation
References
- Талапов В. В. Основы BIM: Введение в информационное моделирование зданий. – М.: ДМК Пресс, 2011. – 392 с.
- Младзиевский Е. П. Применение программных надстроек в Revit как способ расширения стандартного функционала // ACADEMY. – 2020. – № 2. – С. 9–10.
- Совместная работа ЛИРА 10 и Autodesk Revit [Электронный ресурс]. – Режим доступа: https://lira-soft.com/learning/lira-10-revit-videocourse (дата обращения 12.04.2023).
- ПК ЛИРА [Электронный ресурс]. – Режим доступа: https://support.ascon.ru/source/info_materials/2016/2016-booklet-LIRA-10.4.pdf (дата обращения 12.04.2023).
- Autodesk Revit [Электронный ресурс]. – Режим доступа: https://www.autodesk.ru/products/revit (дата обращения 12.04.2023).
- Сельдюшов А. А., Низина Т. А., Ошкина О. М. Анализ совместной работы Autodesk Revit и ПК Лира 10.10 [Электронный ресурс] // Огарев-online. – 2021. – № 6. – Режим доступа: https://journal.mrsu.ru/arts/analiz-sovmestnoj-raboty-autodesk-revit-i-pk-lira- 10-10 (дата обращения 12.04.2023).
Supplementary files

















