Оптимизация технологических параметров укладки бетона в различные варианты опалубок при производстве работ в стесненных условиях строительства
- Авторы: Рязанова Г.Н.1, Алешичев В.И.1
-
Учреждения:
- Самарский государственный технический университет
- Выпуск: Том 14, № 4 (2024)
- Страницы: 108-117
- Раздел: ТЕХНОЛОГИЯ И ОРГАНИЗАЦИЯ СТРОИТЕЛЬСТВА
- URL: https://ogarev-online.ru/2542-0151/article/view/287304
- DOI: https://doi.org/10.17673/Vestnik.2024.04.16
- ID: 287304
Цитировать
Полный текст
Аннотация
В настоящее время возрастает необходимость повышения эффективности возведения монолитных конструкций при строительстве зданий и сооружений. Внедрение современных опалубочных систем позволяет оптимизировать выполнение опалубочных работ. Качественный анализ организационных и технологических параметров позволяет повысить эффективность строительства, снизить трудовые и денежные затраты при выполнении работ по устройству монолитных конструкций в стесненных городских условиях.
Полный текст
В настоящее время возрастает необходимость повышения эффективности возведения монолитных конструкций при строительстве высотных зданий и сооружений. Для выполнения данной задачи различные строительные компании представляют свои решения данного вопроса, разрабатывая современные и эффективные опалубочные системы [1].
Согласно анализу проектных деклараций «ЕРЗ-Аналитика», статистика распределения строительных материалов среди жилых объектов в Российской Федерации показывает, что монолитное строительство имеет определенное место на рынке, а именно 21,78 % от общего объема ввода жилья на 2023 г. (рис. 1), хотя в последние годы потеряло лидирующие позиции в связи с удорожанием стоимости стали, а также уходом с отечественного рынка западных компаний [2].
Рис. 1. Распределение объемов ввода жилья в РФ
Fig. 1. Distribution of housing commissioning volumes in the Russian Federation
Монолитное бетонное и железобетонное строительство в современном мире с каждым годом становится всё популярнее. Отечественные, западные и азиатские компании, такие как Мева, Фарейшин, Дока и Пери, представляют различные опалубочные системы для разного назначения. Благодаря своим технологическим и конструктивным особенностям, современные опалубочные системы позволяют создавать различные архитектурно-конструктивные решения высотных зданий и сооружений, а также конструкции любой сложности с повышенными характеристиками по долговечности [2].
В настоящее время на российском рынке представлены различные виды опалубочных комплексов [3]:
- разборно-переставные мелкощитовые;
- разборно-переставные крупнощитовые;
- подъемно-переставные;
- блочные;
- объемно-переставные;
- скользящие;
- горизонтально-перемещаемые (катучие и тоннельные);
- пневматические;
- несъемные.
Помимо разделения по конструктивным признакам, опалубочные системы классифицируют по функциональному назначению в зависимости от типа бетонируемых конструкций:
- для получения вертикальных поверхностей (в том числе стен);
- для горизонтальных и наклонных поверхностей;
- для образования криволинейных поверхностей;
- для одновременного бетонирования стен и перекрытий, комнат и целых квартир.
По материалам формообразующих элементов опалубку подразделяют на:
- металлическую;
- деревянную;
- фанерную;
- пластмассовую;
- несъемную (пенополистирол, фибролит).
В современном строительстве высотных зданий и сооружений для создания монолитных железобетонных конструкций все чаще используют разборно-переставную крупнощитовую, балочно-ригельную и скользящую опалубки.
Крупнощитовая опалубка состоит из больших щитов, а также элементов, обеспечивающих их соединение и крепление. Щиты способны выдерживать технологические нагрузки без необходимости установки дополнительных несущих или поддерживающих конструкций. В состав щитов входит палуба, элементы жесткости и несущие компоненты. Для процесса бетонирования опалубка оснащается подмостями, подкосами для устойчивости и регулировочными домкратами. Крупнощитовая опалубка находит применение при бетонировании длинных стен, тоннелей и перекрытий.
Наиболее известными опалубочными системами являются DOKA, FRAMAX, PERI TRIO, MEVA MAMUT, а также российские аналоги Гамма, ДАК, Пекомо, Опрус, Агрисогаз и Крамос.
Преимущества данной разновидности опалубки:
- универсальное применение;
- удобство монтажа;
- высокая точность готового покрытия.
Недостатки:
- обязательная организация временной складской площадки элементов опалубочной системы на площадке строительства;
- большой вес в собранном варианте элементов опалубки;
- необходимость использования средств механизации при монтаже опалубочной системы.
Балочно-ригельная опалубка ‒ это каркасная система, состоящая из ригелей, которые соединяются с помощью специализированных крепежных элементов. В отличие от готовых щитов данная конструкция формируется непосредственно на строительной площадке из отдельных балок и ригелей [2]. Палуба, которая служит основой для бетонирования, устанавливается на балки. Такой подход позволяет гибко адаптировать систему под конкретные условия строительства и обеспечивает высокую прочность и устойчивость при выполнении работ. Балочно-ригельная опалубка идеально подходит для создания сложных форм и конструкций, что делает её востребованной в современных строительных проектах.
Данная опалубочная система позволяет создавать перекрытие любой толщины и планового очертания для любой высоты этажа. Продольные и поперечные балки, их положение и шаг между ними, а также фанера и стойки выбирают в зависимости от ситуации. Перехлест балок для перекрытий и изменяемое расположение продольных балок обеспечивает максимальную универсальность. В зависимости от нагрузки и высоты помещения в качестве опор используются стальные или алюминиевые стойки.
Преимущества балочно-ригельной опалубочной системы:
- экономное использование материалов;
- универсальное использование для различных очертаний проектируемой конструкции;
- относительная простота сбора конструкций опалубки;
- небольшой вес элементов опалубки.
Недостатки:
- обязательная организация временной складской площадки элементов опалубочной системы на площадке строительства;
- высокая трудоемкость монтажа и демонтажа относительно остальных разновидностей опалубочных систем.
Скользящая опалубка состоит из щитов, закреплённых на домкратных рамах, рабочего пола, домкратов, приводных станций и других элементов. Опалубование, распалубливание и подъем опалубки производятся без помощи грузоподъемных механизмов, что значительно ускоряет строительство при выполнении монолитных работ. На данный момент скользящую опалубочную систему применяют при возведении вертикальных конструкций железобетонных зданий и сооружений относительно большой высоты [1].
Монолитное строительство в скользящей опалубке позволяет одним комплектом опалубки, путем его переналадки, осуществлять строительство зданий различного планировочного решения и разной этажности (рис. 2).
Рис. 2. Скользящая опалубка:
1 – регулятор горизонтальности; 2 – гидравлический домкрат; 3 – домкратная рама; 4 – рабочий настил; 5 – щиты опалубки; 6 – домкратный стержень; 7 – подвесные подмости внутренние; 8 – подвесные подмости наружные; 9 – металлическая труба; 10 – наружное ограждение
Fig. 2. Sliding formwork:
1 ‒ horizontal regulator; 2 ‒ hydraulic jack; 3 ‒ jack frame; 4 ‒ working flooring; 5 ‒ formwork panels; 6 ‒ homing rod; 7 ‒ internal suspended scaffolding; 8 ‒ external suspended scaffolding; 9 ‒ metal pipe; 10 ‒ external fencing
Неоспоримым плюсом опалубочной системы является экономия территории складирования, так как основной каркас опалубочной системы устанавливается на первых этажах строящегося здания и растет вместе со зданием, опираясь на его несущий конструктив.
Помимо этого, скользящую опалубку возможно совместить с защитными экранами, что позволяет сократить опасную зону возможного падения материалов и конструкций при перемещении грузоподъемными механизмами в районе монтажного горизонта, а также уменьшить зону возможного падения непосредственно со строящегося здания [2].
Преимущества скользящей опалубочной системы:
- значительное повышение темпов строительства;
- снижение трудоемкости производства монолитных работ;
- сокращение стоимости строительства;
- уменьшение сроков производства работ;
- увеличение безопасности производства работ как для строителей, так и для жителей города.
Недостатки:
- высокая стоимость данной опалубочной системы;
- необходимость наличия инженера-технолога при начальных этапах сбора опалубки и ее дальнейшего подъема и демонтажа;
- сложность выполнения демонтажных работ опалубочного комплекса на высоте.
При подготовке к выбору технологии возведения монолитных конструкций проектируемого здания осуществляется подбор опалубочных систем.
Для современного и эффективного выполнения монолитных работ к опалубочным комплексам выдвигаются специфические требования как к самой опалубке, так и к технологии её использования [4]. При возведении монолитных конструкций зданий и сооружений особое внимание уделяется качеству готовой поверхности, что требует дополнительных характеристик от опалубочных систем.
Ключевым аспектом является деформативность опалубочного комплекса, которая напрямую влияет на прочность и качество готовых конструкций. Опалубочная система должна обеспечивать оптимальную трудоемкость выполнения работ, высокую скорость оборачиваемости и приемлемую стоимость [4].
Одним из важнейших требований является равномерность деформации элементов, предназначенных для одной функции, таких как крупноразмерные щиты стен и перекрытий. При использовании термоактивной опалубки необходимо учитывать дополнительные нагрузки и деформации, возникающие в процессе прогрева бетона.
Соединения в опалубочных комплексах должны быть быстроразъёмными и обеспечивать достаточную плотность и непроницаемость. Особое внимание следует уделять обработке сварных швов, углов и кромок для повышения долговечности и надежности конструкции.
При анализе технологии выполнения монолитных работ в выбранной опалубочной системе учитывают конструктивные особенности проектируемого здания, а также условия строительной площадки и размещения здания на нем.
Наличие стесненных городских условий, интенсивного движения городского транспорта и пешеходов в непосредственной близости от места проведения работ, сетей подземных коммуникаций, существующих зданий, ограничений поворота стрелы грузоподъемных механизмов и невозможности устройства складирования материалов на строительной площадке влияет на выбор той или иной опалубочной системы [5].
Критерии стесненности условий производства работ определяются согласно Постановлению Госстроя России от 05.03.2004 № 15/1 (ред. От 16.06.2014) «Об утверждении и введении в действие Методики определения стоимости строительной продукции на территории Российской Федерации» (вместе с «МДС 81-35.2004…»). В соответствии с данными документами стесненные условия в застроенной части городов характеризуются наличием трех из указанных ниже факторов [6]:
- интенсивное движение городского транспорта и пешеходов в непосредственной близости от места работ, обусловливающих необходимость строительства короткими захватками с полным завершением всех работ на захватке, включая восстановление разрушенных покрытий и посадку зелени;
- разветвленная сеть существующих подземных коммуникаций, подлежащих подвеске или перекладке;
- жилые или производственные здания, а также сохраняемые зеленые насаждения в непосредственной близости от места работ;
- стесненные условия складирования материалов или невозможности их складирования на строительной площадке для нормального обеспечения материалами рабочих мест;
- при строительстве объектов, когда плотность застройки объектов превышает нормативную на 20 % и более;
- при строительстве объектов, когда, в соответствии с требованиями правил техники безопасности, проектом организации строительства предусмотрено ограничение поворота стрелы башенного крана [6].
При возведении монолитных конструкций основной нагрузкой, воспринимаемой опалубкой, является давление от бетонной смеси на стенки опалубки [7].
Бетонная смесь представляет собой особую жидкость, давление которой на начальном этапе можно охарактеризовать как гидростатическое. Это означает, что давление зависит от высоты слоя залитой смеси в опалубке. По мере начала процесса схватывания бетона давление перестает увеличиваться. Поэтому расчет давления, действующего на опалубку, особенно для конструкций значительной высоты, необходимо проводить с учетом скорости бетонирования. Это важно для обеспечения надежности и устойчивости опалубочной системы в процессе заливки.
В настоящее время существует множество разнообразных методик для оценки давления свежеприготовленной бетонной смеси на опалубочные конструкции, учитывающих различные влияющие факторы. Совершенствование этих методик обусловлено стремлением сократить время бетонирования и повысить производительность бетононасосов. Это, в свою очередь, ведет к увеличению скорости укладки и высоты конструкций, что требует более точных расчетов давления на опалубку. Адаптация методов позволяет учитывать динамические изменения в процессе бетонирования и обеспечивает надежность и безопасность опалубочных систем при работе с высокими конструкциями.
Определение давления бетонной смеси на вертикальные или наклонные поверхности является весьма сложной задачей. Согласно теоретическим и эмпирическим исследованиям, результаты методов расчета бокового давления смеси имеют разноречивые результаты. Факторы, влияющие на зависимость давления свежеуложенного бетона, представлены в табл. 1.
Таблица 1. Факторы, влияющие на расчет давления свежеуложенной бетонной смеси
Table 1. Factors Influencing Calculation of Freshly Placed Concrete Mix Pressure
Бетонная смесь | Опалубочная система | Укладка бетонной смеси |
Наполнители бетона | Пропускаемость покрытия (поровое давление) | Возрастание нагрузки в месте укладки |
Размер, форма заполнителей | Площадь сечения (стена/колонна) | Состояние воздуха |
Марка цемента | Шероховатость покрытия | Послойная или непрерывная укладка |
Температура смеси | Жесткость опалубочных конструкций | Тип вибрации (внешняя или внутренняя) |
Принцип замеса | Наклон опалубки | Глубина вибрации |
Объемный вес | Вертикальная высота бетонирования | Скорость укладки по высоте |
Консистенция |
С 1963 по 1968 гг. отечественные ученые И.Г. Совалов и В.Д Топчий в результате исследований предложили определять давление бетонной смеси, используя следующие зависимости:
- При уплотнении глубинными вибраторами, высоте слоя укладываемой смеси h, м, меньшей или равной радиусу R, м, действия вибратора h ≤ R, скорости бетонирования V, меньшей 0,5 м/ч, определяется по формуле
P = p × h, кгс/м2, (1)
где p – объемная масса смеси, принимаемая для обычных тяжелых бетонов равной 2500 кг/м3.
- Аналогичным образом для V ≥ 0,5 м/ч при высоте укладываемой смеси h ≥ 1 м определяется по формуле
P = p × (0,27 × V + 0,78) × K1 × K2, кгс/м2, (2)
где К1 – коэффициент, зависящий от подвижности смеси и равный 0,8 для бетонов с осадкой конуса 0-2 см и 1,0 для смесей с Ок = 4-6 см;
К2 – коэффициент, учитывающий влияние температуры бетонной смеси и равный 1,15 для смесей с температурой 5-7 оС, 1,0 при 12-17 оС и 0,85 при 28-32 оС.
- При уплотнении наружными вибраторами при x < 4,5 м/ч и h ≤ 2R определяется по формуле
P = p × h, кгс/м2. (3)
- Аналогичным образом при V ≥ 4,5 м/ч и h > 2 м определяется по формуле
P = p × (0,27 × V + 0,78) × K1 × K2, кгс/м2. (4)
В большинстве случаев давление бетонной смеси рекомендуется ограничивать гидростатическим давлением, приближая свойства виброуплотняемой бетонной смеси к свойствам тяжелой жидкости с соответствующими значениями плотности [7].
Распределение бокового давления по высоте опалубки может быть принято по аналогии с эпюрами гидростатического давления (рис. 3). Данные эпюры удобны для выполнения расчетов, хотя дают завышенные значения Pmax. Результирующая нагрузка в данном случае будет равняться площади треугольной эпюры
Pн = (γ × p2) / 2. (5)
В данном случае фактическое распределение бокового давления определяется в нижней части эпюры криволинейным участком (рис. 3, а). Высота hmax (рис. 3, в), на которой боковое давление имеет наибольшее значение, зависит от скорости бетонирования и быстроты схватывания бетонной смеси. Для бетонов на ординарных цементах (портландцемент, шлакопортландцемент и др.) значение будет определяться по следующим формулам:
hmax = 2 / 3 × H, (6)
P = (0,4 – 0,5) × Pmax. (7)
Рис. 3. Распределение давления бетонной смеси по высоте опалубки:
а – эпюра давления теоретическая; б – то же упрощенная расчетная; в – то же треугольная расчетная
Fig. 3. Distribution of concrete mix pressure by formwork height:
a ‒ theoretical pressure profile; b ‒ the same simplified calculation; c ‒ the same triangular design
И уже в этом случае для удобства использования в практических расчетах такая эпюра заменяется трапециевидной соответствующей площади.
Помимо этого, при выполнении расчета учитывают горизонтальные нагрузки. Ветровые нагрузки принимают согласно 20.13330.2016 «Нагрузки и воздействия».
Нагрузки от сотрясений при выгрузке бетонной смеси учитывают по данным табл. 2. Нагрузки от вибрирования смеси принимают равными 400 кгс/м2 поверхности.
Таблица 2. Нагрузка от сотрясений при выгрузке бетонной смеси
Table 2. Concussion load during concrete mixture unloading
Способ укладки смеси | Горизонтальная нагрузка, кгс/м2 |
Спуск по лоткам и хоботам, а также из бетоноводов | 400 |
Выгрузка из бадей вместимостью от 0,2 до 0,8 м3 | 400 |
Выгрузка из бадей вместимостью более 0,8 м3 | 600 |
Также при использовании наружных вибраторов необходимо учитывать местное воздействие на элементы опалубочной системы, креплений и соединений.
Опалубочные системы рассчитывают на следующие вертикальные нагрузки: собственный вес; масса бетонной смеси, принимаемая равной 2500 кг/м3 для тяжелых бетонов; масса арматуры.
Нагрузку от людей и транспортировочных средств при расчете палубы, настилов и кружал опалубки перекрытий принимают равной 250 кгс/м2, нагрузку при расчете от конструкций, поддерживающих кружала, берут 150 кгс/м2, при расчете стоек лесов – 100 кгс/м2 [1].
Для учета всех нормативных нагрузок вводят коэффициенты перегрузки (табл. 3).
Таблица 3. Коэффициенты перегрузки опалубочных систем
Table 3. Formwork system overload factors
Нормативные нагрузки | Коэффициент перегрузки |
Собственная масса опалубки и лесов | 1,2 |
Масса бетона и арматуры | 1,2 |
Нагрузки от движения людей и транспортных средств | 1,3 |
Боковое давление бетонной смеси | 1,3 |
Динамические нагрузки от сотрясений при выгрузке бетонной смеси |
Прогиб элементов опалубки не должен превышать следующих показателей:
- для опалубки открытых лицевых поверхностей – 1/400 пролета;
- для закрытых поверхностей – 1/250 пролета;
- просадка поддерживающих элементов и лесов – 1/1000 пролета монолитной конструкции.
- Рассмотрим варианты бокового давления при изменении скорости подачи бетонной смеси при V1 = 3,0 м/ч и V2 = 3,5 м/ч.
Исходные данные для выполнения расчета бокового давления свежеприготовленной бетонной смеси представлены в табл. 4.
Таблица 4. Исходные данные для расчета давления свежеприготовленной бетонной смеси
Table 4. Initial data for calculation of freshly prepared concrete mixture pressure
Показатель | Ед. изм. | Вариант 1 | Вариант 2 |
Высота бетонирования (h) | м | 3,3 | 3,3 |
Скорость бетонирования (х) | м/ч | 3,0 | 3,5 |
Температура бетонной смеси (t) | еС | 15 | 15 |
Толщина стены (d) | мм | 250 | 250 |
Осадка конуса (Ок) | мм | 75 | 75 |
Объемный вес бетонной смеси (с) | кН/м3 | 25 | 25 |
Боковое давление бетонной смеси Р определяется по следующей формуле, так как V > 0,5 м/ч:
P = p × (0,27 × V + 0,78) × K1 × K2, кгс/м2,
где К1 – коэффициент, зависящий от подвижности смеси, К1 = 1,2, так как Ок = 75 мм;
К2 – коэффициент, учитывающий влияние температуры бетонной смеси, К2 = 1,0, так как t = 15 оС;
P1 = 25,0 кН/м3 × (0,27 × 3,0 м/ч + 0,78) × 1,2 × 1,0 =
= 47,7 кН/м2 .
P2 = 25,0 кН/м3 × (0,27 × 3,5 м/ч + 0,78) × 1,2 × 1,0 =
= 51,75 кН/м2 .
Следовательно, при увеличении скорости бетонирования на 0,5 м/ч боковое давление на стенки опалубки увеличивается на 8,49 % – с 47,7 до 51,75 кН/м2 (рис. 4).
Рис. 4. Распределение бокового давления в опалубке для вариантов 1 и 2
Fig. 4. Formwork Side Pressure Distribution for Cases 1 and 2
- Рассмотрим варианты бокового давления при изменении подвижности бетонной смеси при малоподвижности П2 с осадкой конуса Ок = 5 мм и П1 с осадкой конуса Ок = 3 мм.
Исходные данные для выполнения расчета бокового давления свежеприготовленной бетонной смеси представлены в табл. 5.
Таблица 5. Исходные данные для расчета давления свежеприготовленной бетонной смеси
Table 5. Initial data for calculation of freshly prepared concrete mixture pressure
Показатель | Ед. изм. | Вариант 1 | Вариант 2 |
Высота бетонирования (h) | м | 3,3 | 3,3 |
Скорость бетонирования (х) | м/ч | 3,0 | 3,0 |
Температура бетонной смеси (t) | еС | 15 | 15 |
Толщина стены (d) | мм | 250 | 250 |
Осадка конуса (Ок) | мм | 50 | 20 |
Объемный вес бетонной смеси (с) | кН/м3 | 25 | 25 |
Боковое давление бетонной смеси Р определяется по следующей формуле, так как V = 0,5 м/ч:
P = p × (0,27 × V + 0,78) × K1 × K2, кгс/м2 ,
где К1 – коэффициент, зависящий от подвижности смеси, К1 = 1,0, так как Ок = 50 мм и К1` = 0,8, так как Ок = 50 мм;
К2 – коэффициент, учитывающий влияние температуры бетонной смеси, К2 = 1,0, так как t = 15 оС;
P1 = 25,0 кН/м3 × (0,27 × 3,0 м/ч + 0,78) × 1,0 × 1,0 =
= 39,75 кН/м2 .
P2 = 25,0 кН/м3 × (0,27 × 3,0 м/ч + 0,78) × 0,8 × 1,0 = = 31,8 кН/м2.
Следовательно, при уменьшении подвижности бетонной смеси с П2 на П1 боковое давление на стенки опалубки уменьшается на 25 % – с 39,75 до 31,8 кН/м2 (рис. 5).
Рис. 5. Распределение бокового давления в опалубке для вариантов 1 и 2
Fig. 5. Formwork Side Pressure Distribution for Cases 1 and 2
- Рассмотрим варианты бокового давления при изменении объемного веса бетонной смеси при p1 = 25,0 кН/м3 и p2 = 23,0 кН/м3.
Исходные данные для выполнения расчета бокового давления свежеприготовленной бетонной смеси представлены в табл. 6.
Таблица 6. Исходные данные для расчета давления свежеприготовленной бетонной смеси
Table 6. Initial data for calculation of freshly prepared concrete mixture pressure
Показатель | Ед. изм. | Вариант 1 | Вариант 2 |
Высота бетонирования (h) | м | 3,3 | 3,3 |
Скорость бетонирования (х) | м/ч | 3,0 | 3,0 |
Температура бетонной смеси (t) | еС | 15 | 15 |
Толщина стены (d) | мм | 250 | 250 |
Осадка конуса (Ок) | мм | 50 | 50 |
Объемный вес бетонной смеси (с) | кН/м3 | 25 | 23 |
Боковое давление бетонной смеси Р определяется по следующей формуле, так как V = 0,5 м/ч:
P = p × (0,27 × V + 0,78) × K1 × K2, кгс/м2 ,
где К1 – коэффициент, зависящий от подвижности смеси, К1 = 1,0, так как Ок = 50 мм;
К2 – коэффициент, учитывающий влияние температуры бетонной смеси, К2 = 1,0, так как t = 15 оС;
P1 = 25,0 кН/м3 × (0,27 × 3,0 м/ч + 0,78) × 1,0 × 1,0 =
= 39,75 кН/м2.
P2 = 23,0 кН/м3 × (0,27 × 3,0 м/ч + 0,78) × 1,0 × 1,0 =
= 36,57 кН/м2.
Следовательно, при уменьшении объемного веса бетонной смеси с 25,0 до 23,0 кН/м3, боковое давление на стенки опалубки уменьшается на 8,69 % – с 39,75 до 36,87 кН/м2 (рис. 6).
Рис. 6. Распределение бокового давления в опалубке для вариантов 1 и 2
Fig. 6. Formwork Side Pressure Distribution for Cases 1 and 2
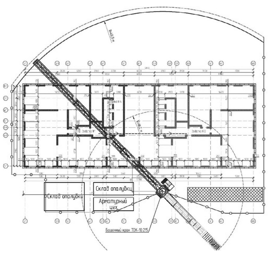
Анализ организационных и технологических параметров «Технологии производства опалубочных работ по устройству вертикальных конструкций в скользящей опалубке» выполняется на проектируемом 37-этажном жилом здании, располагающемся в Октябрьском районе г. Самары.
Краткие характеристики объекта строительства:
- конструктивная схема здания – каркасная с основными вертикальными элементами из монолитного железобетона (пилоны и стены);
- высота этажа 3,3 м;
- перекрытие – монолитные железобетонные плиты толщиной 250 мм;
- фундамент здания – монолитный железобетонный плитный толщиной 1900 мм;
- максимальные габаритные размеры здания в осях – 51,30 × 18,0 м;
- высота здания – 129,850 м.
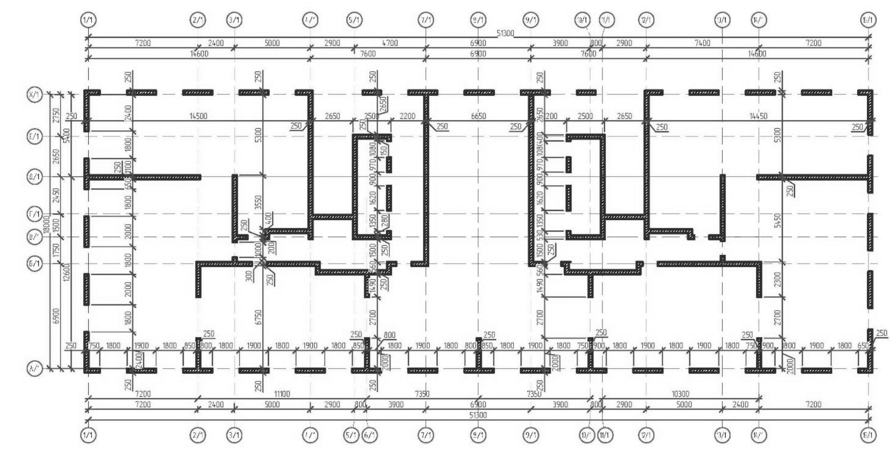
План с расположением вертикальных несущих конструкций типового этажа представлен на рис. 7.
Рис. 7. План расположения вертикальных несущих конструкций типового этажа на отм. +3.000
Fig. 7. Layout of vertical load-bearing structures of typical floor at elev. + 3.000
Выбор скользящей опалубки при строительстве жилого здания был сделан вследствие наличия стесненных городских условий, а именно отсутствия возможности складирования элементов опалубки на территории строительной площадки [5].
График производства опалубочных работ по устройству вертикальных конструкций в скользящей опалубке для 37-этажного жилого здания представлен на рис. 8.
Рис. 8. Технологическая схема производства опалубочных работ по устройству вертикальных несущих конструкций в скользящей опалубке
Fig. 8. Process Flow Diagram of Formwork for Installation of Vertical Load-Bearing Structures in Sliding Formwork
Основные технико-экономические показатели представлены в табл. 7.
Таблица 7. Технико-экономические показатели
Table 7. Technical and economic indicators
Показатель | Ед. изм. | Кол-во |
Общая протяженность осевой линии опалубки | м | 611,28 |
Суммарные затраты труда | чел.-ч | 19 386,0 |
Суммарные затраты машинного времени | маш.-ч | 1 953,5 |
Количество рабочих | чел. | 46 |
Продолжительность работ | дн | 45 |
Выработка на одного рабочего опалубочных работ | м2/чел.-ч | 0,106 |
Стоимость строительно-монтажных работ | тыс. руб. | 7 251,2 |
Выводы.
- Для повышения эффективности возведения высотных зданий требуется оптимизация выполнения опалубочных работ. Так, внедрение в технологический процесс современных опалубочных системы позволяет повысить эффективность при строительстве монолитных высотных зданий.
- При выборе современных опалубочных систем необходимо отталкиваться от конструктивных особенностей и характеристик: повышенное качество готовой поверхности, прочность конструкций опалубки, оптимальная трудоемкость производства работ, высокая оборачиваемость и оптимальная стоимость выполнения работ, наличие стесненных условий строительства и др.
- Одним из наиболее важных показателей при возведении монолитных конструкций здания является давление от бетонной смеси на стенки опалубки. В Российской Федерации расчет выполняют согласно СП.70.13330.2012 «Несущие и ограждающие конструкции», в котором учитывают высоту и скорость бетонирования, подвижность и температуру бетонной смеси. Анализ расчетов бокового давления показывает следующее:
- при увеличении скорости бетонирования с 3,0 до 3,5 м/ч боковое давление на стенки опалубки увеличивается на 8,49 % – с 47,7 до 51,75 кН/м2;
- при уменьшении подвижности бетонной смеси с П2 на П1 боковое давление на стенки опалубки уменьшается на 25 % – с 39,75 до 31,8 кН/м2;
- при уменьшении объемного веса бетонной смеси с 25,0 до 23,0 кН/м3 боковое давление на стенки опалубки уменьшается на 8,69 % – с 39,75 до 36,87 кН/м2.
- Технология устройства вертикальных железобетонных конструкций в скользящей опалубке для 37-этажного жилого здания, расположенного в г. Самаре, позволяет:
- сократить продолжительность выполнения опалубочных работ в 3,29 раза по сравнению с аналогичными работами в крупнощитовой опалубке;
- сократить трудовые затраты на использование грузоподъемных механизмов (башенного крана) на 56,22 % по сравнению с аналогичной технологией в крупнощитовой опалубке;
- уменьшить стоимость выполнения строительно-монтажных работ на 69,39 % по сравнению с аналогичной технологией в крупнощитовой опалубке.
Об авторах
Галина Николаевна Рязанова
Самарский государственный технический университет
Автор, ответственный за переписку.
Email: ryazanovagn55@mail.ru
кандидат технических наук, доцент кафедры технологии и организации строительного производства
Россия, 443100, Самара, ул. Молодогвардейская, 244Вячеслав Игоревич Алешичев
Самарский государственный технический университет
Email: aleshichev.slava@gmail.com
аспирант, ассистент кафедры железобетонных конструкций
Россия, 443100, Самара, ул. Молодогвардейская, 244Список литературы
- Анпилов С.М. Опалубочные системы для монолитного строительства. М.: АСВ, 2005. 280 с.
- Рязанова Г.Н., Алешичев В.И. Анализ рынка опалубочных систем // Перспективные научные исследования: опыт, проблемы и перспективы: сборник статей. Уфа, 2022. С. 224‒231.
- Киянец А.В. Современные опалубочные системы. Челябинск: Изд. центр ЮУрГУ, 2015. 52 с.
- Доладов Ю.И., Зорина М.А., Хабур И.В., Бокарева Е.Н., Додонова Д.А. Особенности монтажа пространственного решетчатого металлического покрытия производственного здания в условиях, ограниченного пространства // Градостроительство и архитектура. 2019. Т. 9, № 4. С. 74‒81. doi: 10.17673/Vestnik.2019.04.12.
- Зорина М.А., Рязанова Г.Н., Ильдияров Е.В., Анализ организационных и технологических решений по выбору крана при проектировании стройгенпланов в стесненных условиях строительной площадки // Градостроительство и архитектура. 2021. Т. 11, № 2. С. 67‒76. doi: 10.17673/Vestnik.2021.02.11.
- Зорина М.А., Рязанова Г.Н. Анализ организационных особенностей работы монтажных кранов в стесненных условиях строительства // Градостроительство и архитектура. 2022. Т. 12, № 2. С. 34‒40. doi: 10.17673/Vestnik.2022.02.06.
- Рязанова Г.Н., Прокопьева А.Ю. Определение бокового давления легкобетонной смеси, уложенной в опалубку, по существующим методикам. Моделирование процесса укладки с позиции эксплуатационных воздействий. Самара: СамГТУ, 2017. Вып. №4. С. 14‒19.
Дополнительные файлы









