Development of modular cleaning complexes water of the north crimea canal for watering agricultural crops
- Autores: Teplykh S.Y.1, Kotovskaya E.E.2, Gorshkalev P.A.1, Gaydaychuk M.G.3
-
Afiliações:
- Samara State Technical University
- Crimean Federal University named after. IN AND. Vernadsky
- IP «Gaнdaychuk»
- Edição: Volume 14, Nº 1 (2024)
- Páginas: 34-45
- Seção: WATER SUPPLY, SEWERAGE, CONSTRUCTION SYSTEMS FOR PROTECTION OF WATER RESOURCES
- URL: https://ogarev-online.ru/2542-0151/article/view/255071
- DOI: https://doi.org/10.17673/Vestnik.2024.01.05
- ID: 255071
Citar
Texto integral
Resumo
In the market of equipment for irrigation of agricultural crops, a significant number of imported filters are sold at a fairly high cost, the loading of which requires constant regeneration and periodic replacement. With the resumption of water supply through the North Crimean Canal and thanks to government investments in agriculture of the Republic of Crimea, the development of compact filtration structures designed to purify irrigation water is relevant.
Texto integral
Введение
После распада СССР на территории Республики Крым (РК) в период 1990‒2000 гг. произошли нарушения экономических связей многих отраслей народного хозяйства, в том числе и сельского. На базе колхозов и совхозов в республике были образованы малые предприятия, такие как фермерские хозяйства, обладающие небольшими земельными участками, площадь которых не позволяла осуществлять рентабельную закладку сельскохозяйственных, в частности косточковых культур. За период с 1990 по 2023 гг. произошли глобальные изменения на территории Республики Крым, так как изменились экономические условия для развития сельского хозяйства. И если в первое десятилетие указанного периода вырабатывался ресурс советского наследия, то второе десятилетие характеризовалось поиском новых форм сельскохозяйственного землепользования. С вхождением Республики Крым в состав Российской Федерации (с 2014 г.) у местных фермеров появилась возможность получения различных грантов и субсидий от государства для развития сельскохозяйственного производства. В экономическом поле РК появились крупные агрохолдинги, обладающие возможностью арендовать значительные земельные площади для выращивания сельскохозяйственных культур, среди которых есть предприятия, готовые обеспечить рынок спроса на косточковые (персиковые) культуры в промышленном масштабе. После периода упадка и слабого роста и во время интенсивного стимулирования государством (на данный момент) сельскохозяйственных предприятий [1] сформировался запрос в восстановлении и развитии садоводства, в котором необходимо комплексно решать следующие задачи:
▪ усовершенствовать структуру и сортимент плодовых культур, обеспечивающих стабильное плодоношение и реализацию плодовой продукции [2];
▪ заложить интенсивные сады с оптимальным размещением пород и сортов в агроклиматических районах с наиболее благоприятными почвенно- климатическими условиями, обеспечивающими стабильную урожайность и высокое качество плодов;
▪ разработать и внедрить новые агротехнологии, направленные на сохранение и повышение плодородия почв.
Одной из значимых составляющих успешного развития агротехнологий является развитие системы орошения сельскохозяйственных культур.
В связи с возобновлением подачи воды по Северо-Крымскому каналу (СКК) у крупных сельхозпроизводителей появилась возможность использовать земли районов Республики Крым, на территории которых проходит Северо-Крымский канал, к ним относятся Джанкойский, Советский, Нижнегорский, Кировский районы, климатические и почвенные характеристики которых благоприятны для развития садоводства при условии обеспечения должного орошения.
Цель работы ‒ получение технологических параметров процесса очистки воды Северо-Крымского канала с разработкой и внедрением в промышленное производство модульной компактной установки для очистки поливной воды.
Основные задачи исследования
Для достижения заявленной цели были сформулированы и реализованы следующие задачи:
▪ оценка пригодности вод СКК для полива сельскохозяйственных культур, с определением норм и сроков полива, а также необходимых типовых мощностей установок;
▪ разработка и изготовление фильтровальной установки, позволяющей моделировать процессы очистки воды;
▪ проведение экспериментальных исследований на модельной воде с последующим анализом полученных результатов;
▪ масштабирование полученных технологических данных для разработки промышленных фильтров.
Основная часть
После возобновления подачи воды по руслу СКК были отобраны пробы воды для последующего химического анализа, результаты которого представлены в табл. 1.
Таблица 1
Table 1
Результаты химического анализа проб воды СКК,
Results of chemical analysis of CCM water samples,
Место отбора | Общая минерализация (сухой остаток), мг/дм3 | рН | Гидрокарбонаты НСО3- | Хлориды Сl- | Кальций Са2+ | Магний Мg2+ | Калий К+ | Натрий Nа+ | Нитраты NО3- | Сульфаты SO42- |
Вода СКК | 800 | 7,12 | 378,2 6,2 | 34,56 0,97 | 132,4 6,62 | 26,91 2,22 | 5,26 0,13 | 41,42 1,80 | 6,15 0,1 | 64,4 1,3 |
Пригодность воды СКК в качестве поливной определяется в соответствии с паспортом воды по формуле, предложенной М.Г. Курловым, заключающейся в анализе химических показателей состава исследуемой воды по соотношению главных ионов. Сокращенное изображение химического состава воды показано в табл. 2.
Таблица 2
Table 2
Паспорт воды Северо-Крымского канала
North Crimean Canal Water Passport
Место отбора | Формула М.Г. Курлова |
Водозабор СКК | М800 НСО365 SO429 Сl6 рН7,12 Cа٦٦ Na21 Mg13 |
Проверку пригодности воды для полива также необходимо проверять по следующим критериям:
▪ анализ опасности общего засоления почвы по величине минерализации;
▪ оценка качества оросительной воды по ирригационному коэффициенту Х. Стеблера;
▪ по степени опасности осолонцевания почв на основе расчета натриевого равновесия (коэффициент SAR);
▪ по степени опасности содообразования в почве по содержанию остаточного бикарбоната натрия (NаНСО3);
▪ по жесткости (в соответствии с требованиями, предъявляемыми к качеству воды нецентрализованного водоснабжения СанПиН 1.2.3685-21);
▪ по коэффициенту ионного обмена;
▪ по степени загрязнения оросительной воды;
▪ по почвенно-мелиоративной классификации.
Результаты оценки по перечисленным показателям представлены в табл. 3, в которую также внесены лимитирующие значения по соответствующим критериям.
Таблица 3
Table 3
Сводные данные определения пригодности воды Северо-Крымского канала с оценкой по различным классификациям
Summary of Water Suitability of North Crimean Canal with Assessment by Different Classifications
Оценка фактора опасности оросительной воды | Значение, полученное аналитическим путем | Предельное значение | Заключение |
По ирригационному коэффициенту Х. Стеблера | 50,7 | Свыше ١٨ | Качество воды хорошее, вода пригодна для орошения, и предупредительные мероприятия не нужны |
По степени опасности осолонцевания почв | 0,86 | SAR = 8‒10 | Опасность осолонцевания низкая |
По степени опасности содообразования в почве по содержанию остаточного бикарбоната натрия (NаНСО3) | -2,64 | 1,25 | Опасности содообразования нет |
По жесткости, мг-экв/л | 4,2 | 7‒10 | Вода средней жесткости |
По коэффициенту ионного обмена | 4,44 | K > 1 | Пригодна по коэффициенту ионного обмена |
По степени загрязнения оросительной воды: | |||
NH4+ | - | Не более ٢ | Не загрязнена |
NO3- | 6,15 | Не более ٤٥ | |
NO2- | - | Не более ٣ | |
PO43- | - | Не более ٤ | |
Почвенно-мелиоративная классификация по показателю минерализации воды для орошения почв | 0,8 | 0,6‒1 | II класс качества |
Анализ проб воды СКК показал, что вода относится ко II классу качества, не оказывает неблагоприятного влияния на качество сельскохозяйственной продукции и пригодна для орошения.
Оценив химический состав вод СКК и убедившись, что по своим характеристикам она может быть использована для полива косточковых (персиковых) культур, приступили к изучению процессов очистки от взвешенных веществ для длительной эксплуатации поливного оборудования. Воды СКК обладают диапазоном изменения мутности 50‒60 мг/л, а поливная вода должна быть не более 5 мг/л, и, рассмотрев существующие методы и установки очистки, появилась необходимость в разработке компактных установок очистки воды СКК от взвешенных веществ с целью использования воды для орошения садов стандартной площади.
На рынке предлагаемого оборудования очистки воды для орошения существует ряд производителей, предлагающих достаточно дорогостоящее оборудование с загрузкой, которую необходимо покупать отдельно. Такие фильтры имеют значительный вес корпуса и значительный вес самой загрузки. Конструкция требует размещения в технологическом помещении, что не всегда осуществимо в полевых условиях. С целью получения технологических параметров и проверки эффективности процесса фильтрования воды СКК была подготовлена фильтровальная установка, загруженная плавающей фильтровальной загрузкой – вспененным полистиролом.
Фильтры с плавающей загрузкой (ФПЗ) хорошо известны (впервые в 1963 г. предложены В.Г. Ильиным) и показали эффективную работу для различных направлений применения: реагентные и безреагентные схемы очистки; удаление металлов из сточных вод; очистка бытовых сточных вод; удаление сине-зеленых и диатомовых водорослей; очистка природных вод из поверхностных и подземных источников; доочистка сточных вод; очистка промывных вод скорых фильтров; обезжелезивание природных вод из подземных источников; удаление металлов из сточных вод; применение после электрокоагуляторов и флотаторов. Значительный вклад в развитие теории фильтрования с применением ФПЗ внесли такие ученые, как: В.Г. Ильин, С.И. Мороз, М.Г. Журба, Н.Н. Гироль, В.О. Орлов, В.К. Шабратько, Н.А. Сафонов, П.Г. Луценко, Ж.М. Говорова, О.Б. Говоров [3‒6].
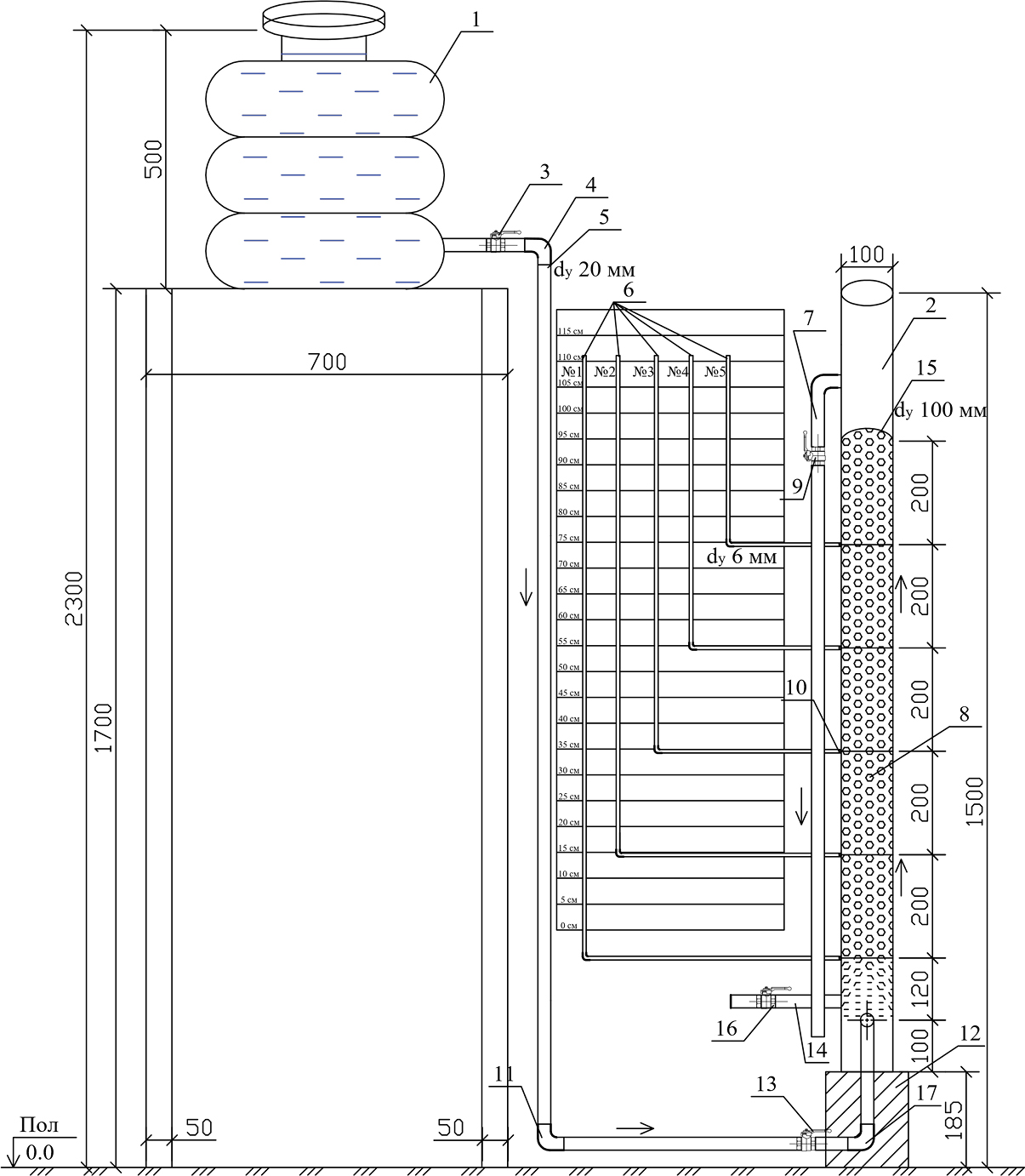
Для выполнения основных задач исследования была разработана и смонтирована фильтровальная установка [7‒10], позволяющая воспроизводить процесс фильтрования на зернистой загрузке, представленной пенополистиролом, на которой проводились эксперименты по очистке воды от взвешенных веществ. На рис. 1 приведена схема экспериментальной установки, состоящая из бака исходной воды, фильтровальной колоны и подающих, отводящих и переливных трубопроводов.
Рис. 1. Экспериментальный стенд фильтровальной установки: 1 – бак с исходной водой; 2 – фильтровальная колонна, dу100 мм; 3 ‒ кран шаровой бабочка; 4,11,17 – угол 90 град; 5 ‒ трубопровод подачи исходной воды в фильтровальную колонку; 6 ‒ трубки для пьезометров; 7 ‒ трубопровод отвода осветленной (фильтровальной) воды; 8 ‒ фильтровальная загрузка пенополистирол; 9,13,16 ‒ кран пластиковый шаровой; 10 ‒ штуцер (5шт.); 12 ‒ деревянный брус; 14 ‒ трубопровод полного опорожнения установки; 15 ‒ фильтрующая сетка
Fig. 1. Experimental stand of filter plant: 1 ‒ tank with source water; 2 ‒ filter column, dy100 mm; 3 ‒ ball butterfly crane; 4,11,17 – 90 deg angle; 5 ‒ a pipeline for supplying source water to the filter column; 6 ‒ piezometer tubes; 7 ‒ pipeline for removal of clarified (filter) water; 8 ‒ filter loading of polystyrene foam; 9,13,16 ‒ plastic ball valve; 10 ‒ connector (5 pcs.); 12 ‒ wooden beam; 14 ‒ pipeline for complete emptying of the plant; 15 ‒ filter screen
На рис. 2 показано получение гранул путем дробления упаковки пенопласта. Размер получаемых гранул составляет 3‒5 мм. Общий вид смонтированной фильтровальной установки представлен на рис. 3.
Рис. 2. Разделение пенополистирола на отдельные гранулы
Fig. 2. Separation of polystyrene foam into individual pellets
Рис. 3. Общий вид установки
Fig. 3. General view of the plant
После монтажа фильтровальная установка заполнялась водой и проходила гидравлические испытания на воду (показавшие течь в области дна установки и в местах присоединения врезки трубопровода для опорожнения, врезки трубопровода подачи воды на фильтрование). При этом на установке было отмечено поэтапное прохождение слоев загрузки, появление уровня воды в пьезометрах, начиная с нижнего. При прохождении верхней границы фильтра вода встречается с предварительно подготовленным препятствием в виде пластикового торцевого круга с отверстиями перфорации меньше, чем диаметр зерен загрузки. При этом расстояние от верхней границы до трубопровода отвода фильтрата составило 300 мм. Появившаяся вода в трубопроводе отвода фильтрата при гидравлическом испытании не содержала включений пенополистирольной загрузки, что свидетельствовало о функциональном соответствии смонтированной установки и показывало, что предложенная конструкция по защите от выноса фильтровальной загрузки работает должным образом и все отверстия выполнены корректно.
После проведения гидравлических испытаний, устранения течи в нижней части установки, местах врезки трубопровода подвода воды на фильтрование и врезки трубопровода полного опорожнения и повторных гидравлических испытаний и предварительного замачивания фильтровальной загрузки в течение трех суток, приступили к реализации основных задач исследования.
Методика получения модельной воды. Ввиду удаленности русла СКК от лаборатории института АСиА (структурное подразделение КФУ им. В.И. Вернадского) и невозможности подвоза свежей воды из источника в достаточном объеме для проведения экспериментальных исследований, встал вопрос о моделировании искусственно замутненной воды, схожей по концентрации с водой СКК. Для этих целей в качестве замутнителя применили бентонитовую глину (голубая, кембрийская). Для получения концентрации 60 мг/л в баке вместимостью 50 л подготовили навеску массой 3,0 г, которую тщательно растворили в мерном стакане с последующим растворением в рабочем объеме.
Подготовленная модельная вода от бака 1 (см. рис. 1) подавалась по трубопроводу подвода воды на фильтрование 5, т. е. в фильтровальную колонку 2 (в нижнюю часть), проходя послойно фильтрующую загрузку 8. В пьезометрах 6 показаны уровни исследуемой воды (рис. 4), позволяющие определить приращение величины потерь напора при прохождении фильтровальных слоев. Через пьезометры отбирали пробы воды и определяли остаточную концентрацию взвешенных веществ. Фильтруемая вода поступает в трубопровод отвода воды 7. При опорожнении фильтра открывали вентиль 16 на трубопроводе полного опорожнения, расположенного в нижней части установки.
Рис. 4. Уровни воды в пьезометрах
Fig. 4. Water levels in piezometers
Результаты обора проб воды показывают, что исходная вода, прошедшая через фильтровальную загрузку, осветлилась и на выходе обладала меньшей концентрацией взвешенных веществ, чем при задержании в межзерновом пространстве и на поверхности загрузки взвешенных веществ. Оценку качества фильтрата проводили фотоэлектроколориметрическим методом, согласно которому между оптической плотностью жидкой среды и концентрацией вещества в растворе существует прямая пропорциональная зависимость. Для возможности применения фотоэлектроколориметра (ФЭК) и определения количества остаточных загрязнений веществ в жидкости предварительно было необходимо составить калибровочный график, показывающий зависимость оптической плотности раствора D от мутности или количества загрязняющих веществ в растворе (рис. 5), с нанесенной линией аппроксимации, которой соответствует коэффициент корреляции R = 0,996, что отражает сильную корреляционную связь.
Рис. 5. Калибровочный график
Fig. 5. Calibration plot
При помощи полученного графика пересчитали все данные по определению мутности в отобранных пробах, результаты которых представлены в табл. 4.
Таблица 4
Table 4
Данные по определению мутности в отобранных пробах
Turbidity data in sampled samples
Параметры | Исходная | № пьезометра | Фильтрат | ||||
1 | 2 | 3 | 4 | 5 | |||
Оптическая плотность D | 0,37 | 0,365 | 0,28 | 0,24 | 0,19 | 0,135 | 0,04 |
Мутность М, мг/л | 60 | 60 | 44 | 40 | 35 | 25 | 5 |
Эффективность очистки Э, % | - | - | 26,7 | 33,3 | 41,7 | 58,3 | 91,7 |
В результате наибольшая эффективность очистки была достигнута при отборе проб из трубопровода отвода ‒ фильтрат, составляющая 91,7 % при остаточной мутности 5 мг/л и оптической плотности 0,04.
Полученные данные были обобщены при помощи теории фильтрования Д.М. Минца, результаты обработки показаны на рис. 6.
Рис. 6. Изменение отношения текущей концентрации к исходной по мере прохождения фильтровального слоя l/lф
Fig. 6. Change in Current Concentration to Baseline Ratio as the filter bed passes l/lф
Экспериментальные данные аппроксимируются выражением, при индексе корреляции 0,921 (корреляционная связь сильная [8]):
Фильтроциклы на модельной установке показали хорошие результаты и подтвердили эффективность фильтрования через пенополистирольную загрузку с показателем 91,7 %. Требуемая величина остаточного содержания взвешенных веществ была достигнута, что позволило приступить к выполнению конструктивных расчетов модульной фильтровальной установки для типовых площадей закладки косточковых садов.
Для перехода к разработке установки в первую очередь, как и для любого гидравлического сооружения, необходимо определить ее производительность. Для этого были определены стандартные или типовые площади полива косточковых культур, позволяющие рассчитать производительность установки по воде.
Методика расчета сроков и норм полива базируется на интегральной кривой дефицита водопотребления для персикового сада в год с 70 %-й водообеспеченностью. Промежуточные расчеты для построения интегральной кривой в настоящую работу не включены, как и сама интегральная кривая, но данные, снимаемые с кривой, сведены в табл. 5, в которую также внесены типовые площади садов, получившие наибольшее распространение в практике садоводства: 1, 20 и 100 га. Меньшая площадь малорентабельн а для крупных производителей, большая площадь сложна в технологии возделывания.
Таблица 5
Table 5
Таблица определения расходов воды на полив садов
Table for determining water consumption for watering gardens
Площадь F, га | Расход Q | Ордината гидромодуля q, л/с·га (значения сняты с интегральной кривой водопотребления) | |
м3/ч | л/с | ||
1 | 4 | 1,1 | 0,01 |
20 | 80 | 22,2 | 0,22 |
100 | 400 | 111,1 | 1,11 |
На рис. 7 показан план размещения фильтровального оборудования производительностью 80 м3/ч, состоящего из четырех установок по 20 м3/ч, оснащенных трубопроводами подвода воды на очистку диаметрами 160 и 90 мм, трубопроводами отвода очищенной воды диаметрами 200 и 90 мм. Объем фильтровальной загрузки составил 4 м3.
Рис. 7. План размещения фильтровальной установки на 80 м3/ч
Fig. 7. Filtration plant layout plan for 80 m3/h
Для двух производительностей выполнен расчет необходимых материалов с определением полной стоимости оборудования, позволяющей сравнить стоимость с оборудованием, предлагаемым различными производителями (табл. 6).
Таблица 6
Table 6
Сводные данные расчета установки очистки воды для орошения
Irrigation Water Treatment Unit Calculation Summary
Данные расчета установки очистки воды | Типовая площадь сада, га | |
1 | 20 | |
Полив осуществляется | ||
одновременно всей площади сада и работает один фильтр | попеременно частей площади сада и работает четыре фильтра с суммарной подачей ٨٠ м3/ч | |
Q, м3/ч | 4,00 | 20,00 |
Скорость входа воды в фильтр, м/ч | 6,00 | 6,00 |
Площадь поверхности фильтра F, м2 | 0,67 | 3,33 |
Данные расчета установки очистки воды | Типовая площадь сада, га | |
1 | 20 | |
Полив осуществляется | ||
одновременно всей площади сада и работает один фильтр | попеременно частей площади сада и работает четыре фильтра с суммарной подачей ٨٠ м3/ч | |
Диаметр фильтра d, м | 0,9 | 2 |
Высота слоя фильтрующей загрузки конструктивная, м | 1,20 | 1,20 |
Площадь живого сечения фильтра F, м2 | 0,64 | 3,14 |
Фактическая скорость поступления воды в фильтр | 6,29 | 6,37 |
Подбор насоса для забора воды из канала и подачи на фильтр | ||
Q, м3/ч | 4,00 | 20,00 |
Q, л/c | 1,11 | 5,56 |
Диаметр трубопровода d, мм | 50 | 110 |
Скорость v, м/c | 0,83 | 0,86 |
Удельные потери напора,١٠٠٠i, м/км | 24,9 | 10,1 |
Длина трубопровода l, м | 30 | 30 |
Потери напора на участке трубопровода, м: | ||
hl | 0,90 | 0,36 |
Нг | 15 | 15 |
hф | 1 | 1 |
hсв | 3 | 3 |
Нр | 19,9 | 19,4 |
Марка подобранного насосного оборудования | Calpeda MXS4/404 | Calpeda 4SD15/6 |
Номинальная мощность, кВт | 1,30 | 1,50 |
Потребляемая мощность, кВт | 2,2 | 2,33 |
Номинальный ток, А | 3,80 | 4,20 |
Масса агрегата, кг | 15,6 | 18,50 |
Стоимость насосного агрегата, евро | 777,3 | 769,98 |
Стоимость, тыс. руб. | 68,40 | 67,76 |
Подбор емкости для накопления воды на один технологический цикл | ||
Объем емкости запаса суточной работы фильтра, м3 | 4,00 | 20,00 |
Объем рабочий, м3, max | 4,00 | 20,00 |
Диаметр внутренний, м | 1,25 | 2,2 |
Длина емкости, м | 3,4 | 5 |
Стоимость, тыс. руб. | 40 | 190 |
Стоимость плиты основания | ||
Габаритные размеры плиты для размещения сблокированных очистных сооружений | 3,4·3,4·0,25(h) | 7,6·7,6·0,25(h) |
Объем бетона, м3 | 2,89 | 14,44 |
Стоимость бетона, тыс. руб./м3 | 3,4 | 3,4 |
Данные расчета установки очистки воды | Типовая площадь сада, га | |
1 | 20 | |
Полив осуществляется | ||
одновременно всей площади сада и работает один фильтр | попеременно частей площади сада и работает четыре фильтра с суммарной подачей ٨٠ м3/ч | |
Стоимость плиты, тыс. руб. | 9,83 | 49,1 |
Вес арматуры, кг | 0,23 | 1,14 |
Цена металла, тыс. руб./т | 67 | 67 |
Стоимость металла, тыс. руб. | 15,34 | 76,51 |
Стоимость плиты основания, тыс. руб. | 25,17 | 125,61 |
Стоимость щебеночной подготовки | ||
Объем щебня для щебеночной подготовки, м3 | 0,62 | 2,96 |
Цена щебня, тыс. руб./м3 | 0,8 | 0,8 |
Стоимость щебня, тыс. руб. | 0,49 | 2,3716 |
Расчет конструкции фильтра из полипропилена | ||
Объем полипропилена для изготовления емкости, см3 | 35268,5 | 401920 |
Плотность полипропилена, г/см3 | 0,91 | 0,91 |
Вес полипропилена, кг | 32,31 | 365,75 |
Цена полипропилена, руб./кг | 300 | 300 |
Стоимость полипропилена для изготовления фильтра, руб. | 9628,3 | 109724 |
Суммарная стоимость объекта, тыс. руб. | 434,06 | 685,77 |
Стоимость работы и монтажа, тыс. руб. | 375,17 | 475,61 |
Итого стоимость фильтра (материалы, монтаж, пуск), тыс. руб. | 143,7 | 495,72 |
Расчет выполнен в фактических ценах на декабрь 2022 г. Анализ полученных данных показал, что стоимость материалов и выполненных работ составляет 143,7 тыс. и 495,72 тыс. руб. для установок производительностью 4 и 20 м3/ч соответственно, при этом большие затраты приходятся на изготовление корпуса фильтра ‒ 9,63 тыс. и 109,72 тыс. руб. На рынке оборудования для подготовки поливной воды стоимость фильтра производительностью 80 м3/ч составляет 155 тыс. руб. [12] за один фильтр без вспомогательного оборудования и монтажных работ, при этом для эксплуатации такого оборудования необходимо обеспечить напор перед фильтром 80 м, что соответственно приведет к удорожанию вспомогательного оборудования.
Выводы
1. Выполнено сравнение показателей воды Северо-Крымского канала Республики Крым. Установлено, что вода относится ко II классу ‒ не оказывает неблагоприятного влияния на качество сельскохозяйственной продукции и пригодна для орошения.
2. Выполнено моделирование процесса очистки на фильтровальной установке с плавающей фильтрующей загрузкой (пенополистиролом) на искусственно замутненной воде, имитирующей воду Северо-Крымского канала.
3. Установленная эффективность очистки составила 91,7 %, при этом полученное значение остаточной мутности удовлетворяло требованиям, предъявляемым к воде для полива при помощи капельного орошения.
4. Определены расходы воды для полива на основании определения стандартных площадей выращивания косточковых культур.
5. Рассчитаны конструктивные параметры, необходимые для изготовления установок типовой производительности с определением затрат на их изготовление и монтаж.
6. Выполнено сравнение стоимости с подобными конструкциями импортного производства и установлено, что их стоимость превышает предложенную конструкцию в 1,5‒2 раза без учета стоимости дополнительного оборудования, необходимого для эксплуатации.
Sobre autores
Svetlana Teplykh
Samara State Technical University
Autor responsável pela correspondência
Email: lana2802@mail.ru
Doctor of Engineering Sciences, Associate Professor, Associate Professor of the Water Supply and Wastewater Chair
Rússia, Samara, Molodogvardeyskaya str., 244, 443100Elena Kotovskaya
Crimean Federal University named after. IN AND. Vernadsky
Email: elevkot@gmail.com
Senior Lecturer of the Engineering Systems in Construction Chair
Rússia, Simferopol, Academician Vernadsky Ave., 4, 295007Pavel Gorshkalev
Samara State Technical University
Email: kafvv@mail.ru
PhD in Engineering Sciences, Associate Professor, Associate Professor of the Water Supply and Wastewater Chair
Rússia, Samara, Molodogvardeyskaya str., 244, 443100Maxim Gaydaychuk
IP «Gaнdaychuk»
Email: variv@mail.ru
Joint Venture Engineer for the Construction of External Water Supply and Sewerage Networks
RússiaBibliografia
- Decree of the President of the Russian Federation “On the Approval of the Doctrine of Food Security of the Russian Federation. 2020. N. 20. 21 p.
- K sozdaniju plodovyh kul’tur v Krymu [To the creation of fruit crops in the Crimea]. Yalta, 2017. 107 p.
- Orlov V.O. Іntensifіkacіja roboti vodoochisnih sporud sіl’s’kogospodars’kih grupovih vodoprovodіv. Doct, Diss. [Іntensifіkatsіya robotics of water reserves sіlskogospodarskikh groups vodoprovodіv. Doct. Diss.]. Rivne, 1995. 270 p.
- Gyrol N.N. Intensifikacija processa doochistki stochnyh vod fil’trovaniem. Doct, Diss. [Intensification of Waste Water Aftertreatment Process by Filtration. Doct. Diss.]. Kharkiv, 1994. 384 p.
- Zhurba M.G. Penopolistirol’nye fil’try [Styrofoam filters]. Mocsow, Stroyizdat, 1992. 174 p.
- Zhurba M.G. Innovative technologies for filtration of aqueous suspensions through floating polymer charges. Vodosnabzhenie i kanalizacija [Water Supply and Sewerage], 2010, no. 5–6, pp. 47–56. (in Russian)
- Strelkov A.K., Kotovskaya E.E., Teplykh S.Yu. Determining the efficiency of water purification of surface sources of centralized water supply from organic pollution on the example of Simferopol. Gradostroitel’stvo i arhitektura [Urban Planning and Architecture], 2017, vol. 7, no. 3(28), pp. 35–45. (in Russian) doi: 10.17673/Vestnik.2017.03.7
- Chernosvitov M.D., Kolyfanova E.A. Comparison of methods of manufacturing a floating filtering foamed polystyrene charge for water purification. Tradicii i innovacii v stroitel’stve i arhitekture. Stroitel’nye tehnologii: sb. st. [Traditions and innovations in construction and architecture. Construction technologies]. Samara, 2016, pp. 263–266. (In Russian).
- Chernosvitov M.D., Kolyfanova E.A. Characteristics of a floating filtering foamed polystyrene load obtained by carved grinding methods. Tradicii i innovacii v stroitel’stve i arhitekture. Stroitel’nye tehnologii: sb. st. [Traditions and innovations in construction and architecture. Construction technologies]. Samara, 2017, pp. 177–181. (In Russian).
- SantaGata Dual Chamber Sand and Gravel Filter. Available at: https://agroserver.ru/b/dvukhkamernye-peschano-graviynye-filtra-santagata-italiya-2-39-1419560.htm (accessed 10 December 2023).
Arquivos suplementares








